Kidbrooke Village is a masterplanned regeneration development in South East London, offering direct train connections to Central London on a single line, combined with extensive green spaces and a full range of on-site amenities. Designed to bring together modern city living and nature, the development is particularly well suited to families, students and long-term investors.
The project features multiple residential collections, each catering to different lifestyle needs within a well-connected and carefully planned neighbourhood.
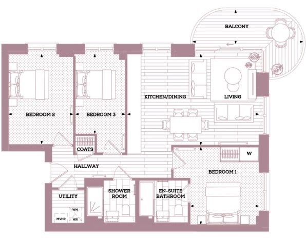
Kidbrooke Village offers a wide range of homes across multiple collections:
Homes are arranged across landscaped neighbourhoods, designed to support long-term residential living.
Kidbrooke Village is ideally suited for:
Kidbrooke Station is located within the development, providing direct, single-train journeys to key Central London destinations:
This direct connectivity makes Kidbrooke Village particularly attractive for professionals and students commuting into Central London.
Universities & Education Access
Kidbrooke Village benefits from excellent access to major London universities, with a particular advantage for students attending the University of Greenwich:
Kidbrooke Village offers a comprehensive range of facilities designed to support everyday living:
What is Stamp Duty?
Stamp Duty Land Tax (SDLT) is a tax you might have to pay if you buy a property in England or Northern Ireland but you’ll only have to pay it if the house you’re buying is over a certain price. If you’re buying a residential property or piece of land in England or Northern Ireland, you’ll have to pay Stamp Duty Land Tax (SDLT) if your purchase is over the threshold of £125,000.
Eligible first-time buyers will pay no Stamp Duty on properties costing up to £300,000, and a discounted rate on property purchases up to £500,000.
Stamp Duty rates changed on 1 April 2025.
Our Stamp Duty calculator lets you know the amount of tax you’ll be liable to pay. It’ll work out how much Stamp Duty you’ll owe, whether you’re a first-time buyer, moving home, or buying an additional property.
Use the form below to contact us!
